PROYECTO CONSTRUCTIVO DE COLECTORES GENERALES DEL VALLE DE LA OROTAVA

OBJETO DE LA ACTUACIÓN

Las obras proyectadas en la actuación “AGRUPACION DE VERTIDOS VALLE DE LA OROTAVA” permitirán recoger las aguas residuales generadas por las aglomeraciones urbanas que integran el Sistema Territorial de Infraestructuras de Saneamiento del Valle de La Orotava (Valle de la Orotava, Cuesta de la Villa, La Caridad, La Florida e Icod Alto) para derivarlas hacia la EDAR Comarcal del Valle de La Orotava, situada en el Puerto de la Cruz, donde el efluente recibirá el tratamiento exigido por la normativa europea antes de proceder a su vertido a través del Emisario Submarino de Punta Brava.

DESCRIPCIÓN DE LAS OBRAS E INSTALACIONES

Se van a construir dos nuevas estaciones de bombeo de aguas residuales (EBAR), en Cuesta de la Villa y en San Vicente, y se van remodelar otras 4 en Martiánez, El Faro, Playa Jardín y Santelmo. Además, se van a ejecutar 11 kilómetros de colectores en San Jerónimo, los Martillos, Vista Paraíso, Cuesta de la Villa, los Cuartos, la Montaña, Martiánez y Los Gómez- La Florida

Las infraestructuras que se proyectan son:

  • Colector San Jerónimo.
  • Colector Los Martillos.
  • Colector Vista Paraíso.
  • Colector Cuesta la Villa, tramos I y II.
  • Colector Los Cuartos
  • Colector La Montaña.
  • Modificación del trazado del colector barranco Martianez.
  • Colector Los Gómez – La Florida.
  • Impulsión EBAR Cuesta de la Villa – Colector Cuesta La Villa.
  • Impulsión EBAR San Vicente – Los Realejos.
  • Remodelación EBAR (“A”, “B” y “C”)en Puerto de la Cruz, 
  • Remodelación EBAR Playa Jardín.
  • Remodelación EBAR Cuesta de la Villa.
  • Remodelación EBAR San Vicente.

Colector de San Jerónimo

Este tramo consiste en un colector por gravedad de diámetro variable DN 1.000 y DN 630 mm de PVC Corrugado, que conectará con otro punto de la red de alcantarillado situado aguas abajo.

Este colector partirá de un punto cercano a la EDAR del P.I. San Jerónimo (situada en el término municipal de La Orotava. En este punto recogerá todos los caudales que lleguen hasta ella. Posteriormente, pasará bajo la autovía TF‐5 mediante una hinca y entrará en el término municipal de Puerto de La Cruz. A continuación, discurrirá por la C/ Tafuriaste hasta llegar al final de la misma, donde saldrá de la zona urbana y se trazará en paralelo al barranco Martiánez por parcela privada, hasta llegar nuevamente a zona urbana por vial.

En su tramo final cruza una parcela privada y posteriormente, de forma aérea el Barranquillo Cospedal aguas arriba para conectar con el colector existente de la red de alcantarillado del barrio “Las Tapias”.

Colector de los Martillos

Este tramo consiste en la construcción del colector Los Martillos con diámetro variable DN 800 y DN 400 mm de PVC corrugado, el cual estará ubicado dentro del Término municipal de La Orotava con el fin de incorporar los caudales generados en la zona de las barriadas de San Miguel a la red de alcantarillado de la zona Tafuriaste del mismo barrio (desde la que a su vez llegarán a la EDAR del Valle de La Orotava). El colector partirá del final de la C/ Rigoberta Menchú (punto donde está previsto que desagüe la red de alcantarillado proyectada en la barriada de San Miguel) y discurrirá por suelo rustico hasta llegar a la C/ Tafuriaste donde conectará con la red existente.

Colector Vista Paraíso

Este tramo incluye la ejecución de un nuevo colector por gravedad de diámetro 400 mm de PVC Corrugado y longitud aproximada de 568,98 m, que con inicio en la C/Paraíso (T.M. Santa Úrsula) discurrirá bajo el viario de la urbanización homónima hasta su terminación en el emplazamiento previsto para la implantación de la EBAR Cuesta de La Villa.

Colector Cuesta de la Villa (Tramos I y II)

Con inicio en el P.K.9+000 de la carretera insular TF‐217 (T.M. Santa Úrsula) y siguiendo el trazado de ésta en dirección al Valle de La Orotava, se ha proyectado el colector por gravedad Cuesta La Villa. Este colector se divide en dos tramos, el Tramo I y Tramo II, con una longitud acumulada de aproximadamente1789,19 m y diámetro 400 mm de PVC corrugado.

Colector de los Cuartos

Este colector de diámetro variable DN 800 y DN 400 mm de PVC Corrugado, estará ubicado dentro del Término municipal de Los Realejos con el fin de incorporar los caudales generados en “Las Gañarías” hasta el Colector general de Los Realejos T‐II. El colector partirá de la intersección de la C/ La Zamora (carretera TF 333) con la C/ Los Cuartos y su trazado discurrirá por la segunda de ellas hasta llegar a la C/ Los Barros (carretera TF 334) donde conectará con la red comarcal.

Colector de la Montaña

Este colector, de diámetro variable DN 630 y 400 mm de PVC Corrugado estará ubicado dentro del Término municipal de Los Realejos con el fin de incorporar los caudales generados en “La Montañeta” y “Cruz Santa” con el ramal de Cruz Santa. El colector partirá del punto de desagüe de la red de alcantarillado de la zona norte de “Cruz Santa” en la C/ Mencey Bentor. Discurrirá por la citada calle, por la C/ Zamora y por la Carretera La Montaña, hasta llegar a la altura de la C/ Laurel (donde conectará con el ramal de Cruz Santa).

Modificación del colector Martiánez

En la actualidad en la zona del Puerto de la Cruz están en servicio dos colectores interceptores de aguas residuales, uno de ellos discurre por el cauce del Barranco y otro por la vía pública. El primero de ellos recoge las aguas de los hoteles de El Tope, Casablanca y San Felipe, junto con las del centro comercial la Pirámide, pero tienen numerosos problemas por encontrarse en un estado muy deteriorado. Por este motivo, se plantea ejecutar las acometidas de los hoteles El Tope y Casablanca, que son los mayores afectados, y derivarlos al colector existente de diámetro 315 mm que discurre por la Avenida Aguilar y Quesada.

El ramal del Tope parte del pie del talud del barranco donde se ubica el hotel y discurre por la calzada de Martiánez hasta conectar en un pozo con el colector existente.

El ramal de Casablanca parte del borde del hotel que linda con el barranco y bordea el hotel hasta llegar a la calzada de Martiánez buscando la acometida anterior del hotel El tope, donde se unen y discurren por el mismo colector. Los colectores del tramo del hotel el Tope y Casablanca son de 400 mm de diámetro, de PVC corrugado de doble pared y tienen una longitud aproximada de 86,80 m y 341,15 m respectivamente.

Colector Los Gómez-La Florida

Este tramo consiste en la construcción del colector “Los Gómez‐La Florida” de diámetros variables DN 800 y DN 400 mm de PVC corrugado, cuyo objeto es la recogida de los caudales del barrio de La Florida y su conducción hasta el tramo de colector existente Los Gómez ‐ La Florida. El colector proyectado parte desde la c/ El Cercado, punto donde drena la red de la Florida baja, para posteriormente discurrir por la c/ Cuatro Cantillos y seguir por el camino Florida alta hasta llegar a la c/ La Palma. El trazado tras la c/ La Palma continúa por la c/ Jesús Luis Pérez, para terminar en la c/ Luis Casañas donde conecta con el colector existente en la esquina con el camino Los Gómez, junto al Estadio Municipal de La Florida.

Impulsión de Cuesta de la Villa

Se proyecta una conducción de impulsión de DN 100 mm de FD entre la nueva Estación de Bombeo donde llegan las aguas procedentes del colector de Vista Paraíso y el colector de Cuesta de la Villa, donde se descargan las aguas procedentes de la EBAR. La longitud de la impulsión será de 216,41 m aproximadamente. El trazado de esta conducción se inicia en la EBAR de Cuesta de la Villa, discurriendo bajo la Autopista TF‐5 mediante una perforación horizontal dirigida DN 400 mm de PEAD y a la salida de esta discurrirá por el talud de la autopista, hasta encontrarse con la carretera TF‐21 donde finaliza en una arqueta de rotura que conecta con la nueva conducción de gravedad de Cuesta de la Villa.

Impulsión San Vicente – Los Realejos

La impulsión de diámetro de 160 mm de FD y longitud de 1.264 m se proyecta entre la EBAR San Vicente y el Colector por gravedad general de Los Realejos

La tubería parte desde la nueva EBAR San Vicente adaptándose al talud de la ladera de la elevación de San Vicente, continuando por la C/ Tropicana hasta dirigirse a la calle de San Vicente donde conecta con el ramal de Los Realejos.

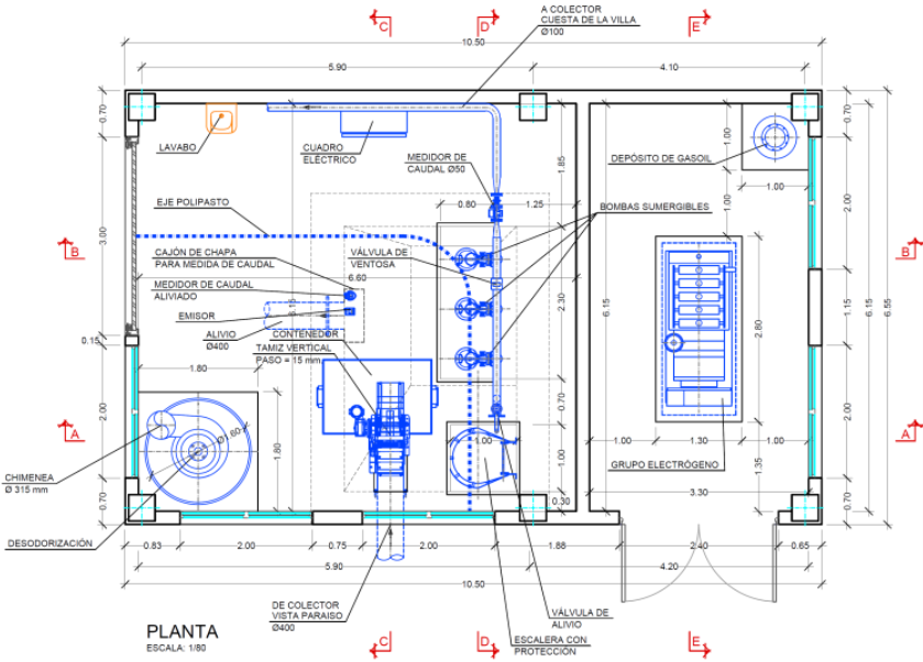
EBAR Cuesta de la Villa

Se proyecta una nueva estación de bombeo a los efectos de garantizar la impulsión de las aguas residuales generadas en la urbanización Vista Paraíso (T.M. Santa Úrsula) hasta el Colector por gravedad Cuesta La Villa.

Se proyecta una caseta de bombeo que quedará dotada de un depósito de aspiración del bombeo, zona húmeda de desbaste, zona seca de cuadros, extracción de bombas y estructura para el grupo de emergencia.

En la EBAR no es previsible que se produzcan alivios incontrolados, no obstante, para asegurar la integridad de la instalación ante episodios poco frecuentes pero posibles de lluvias de avenida y fallos de elementos del sistema, además de para facilitar las labores de mantenimiento, se han proyectado dispositivos de seguridad y emergencia, así como un aliviadero con vertido a pozo absorbente.

EBAR de San Vicente

En la ladera de la urbanización Tropicana, se proyecta una nueva estación de bombeo a los efectos de garantizar la impulsión de las aguas residuales generadas en dicha urbanización, así como en el núcleo de San Vicente (T.M. Los Realejos) hasta el Colector general de Los Realejos, siguiendo similares criterios estructurales a las proyectadas en el resto del Sistema de saneamiento Valle de La Orotava.

Se proyecta una caseta de bombeo que quedará dotada de un depósito de aspiración del bombeo, zona húmeda de desbaste, zona seca de cuadros, extracción de bombas y estructura para el grupo de emergencia.

En la EBAR no es previsible que se produzcan alivios incontrolados, no obstante, no obstante, para asegurar la integridad de la instalación ante episodios poco frecuentes pero posibles de lluvias de avenida y fallos de elementos del sistema, además de para facilitar las labores de mantenimiento, se han proyectado dispositivos de seguridad y emergencia así como un aliviadero con vertido al Barranco de la Fajana.

Las actuales instalaciones correspondientes a las EBARs, dado el tiempo transcurrido desde su puesta en funcionamiento, requieren la rehabilitación de algunos aspectos de obra civil e instalaciones que se encuentran muy deterioradas (mejoras en techos, pintura y albañilería, etc.) por efecto de la humedad reinante en el ambiente, además de la sustitución de elementos funcionales, todo ello en los correspondientes espacios.

FICHA ADMINISTRATIVA*

* La Sociedad Mercantil Estatal Aguas de las Cuencas de España (ACUAES) tiene encomendada por el Ministerio de Transición Ecológica y Reto Demográfico, que ejerce la tutela sobre la sociedad estatal a través de la Dirección General del Agua.

SITUACION En ejecución
Proyecto  
BOE información pública del proyecto  B.O.E. nº 25 de 29 de enero de 2021
Aprobación técnica del  Proyecto  23/07/2021
Obra UTE MARTÍN CASILLAS - CONSTRUCCIONES DALTRE 
Presupuesto vigente (IVA incluido) 9,721,012.68 €
Fecha firma contrato 17/01/2022
Dirección de obra UTE GRUSAMAR, INGENIERÍA Y CONSULTING, S.L.U. - EIC, ESTUDIO DE INGENIERÍA CIVIL, S.L. - TRAZAS INGENIERÍA, S.L.
Presupuesto adjudicacion (IVA incluido) 415,492.00 €
Adjudicación del contrato 30/11/2021

   

INTERÉS GENERAL

Las obras de referencia están declaradas de interés general, incluidas en el anexo II de la ley 10/2001, de 5 de julio, del Plan Hidrológico Nacional como “Colectores generales de saneamiento del Valle de la Orotava”.